top of page
TIENDA DE MASCOTAS
3D de tienda de cuidado para mascotas para trabajo universitario
Material extra
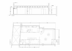
-Planos de proyecto
-Varios croquis
-Dibujos explicativos
Fecha de creación: mayo-2012
![]() Plano general original | ![]() Plano general con intervención |
|---|---|
![]() Croquis de fachada | ![]() Croquis de elementos 1 |
![]() Croquis de elementos 2 |
![]() Vista general | ![]() Fachada |
|---|---|
![]() Zona tienda | ![]() Mostrador |
![]() Zona de espera | ![]() Zona perruquería |
![]() Almacén | ![]() Habitación de limpieza |
![]() Baño | ![]() Wireframe |
Modelo
Actualización
-
Polígonos
1.233.610
Vertex
827.850
Subdivisión
no
Texturas
alta resolución
Mapeado
standard
Tipo iluminación
iluminación global
No modelado
muebles varios
Please reload
bottom of page















